Çekmeceli Kalıp Rafı %65 SE.2552.0822

.png)

.png)
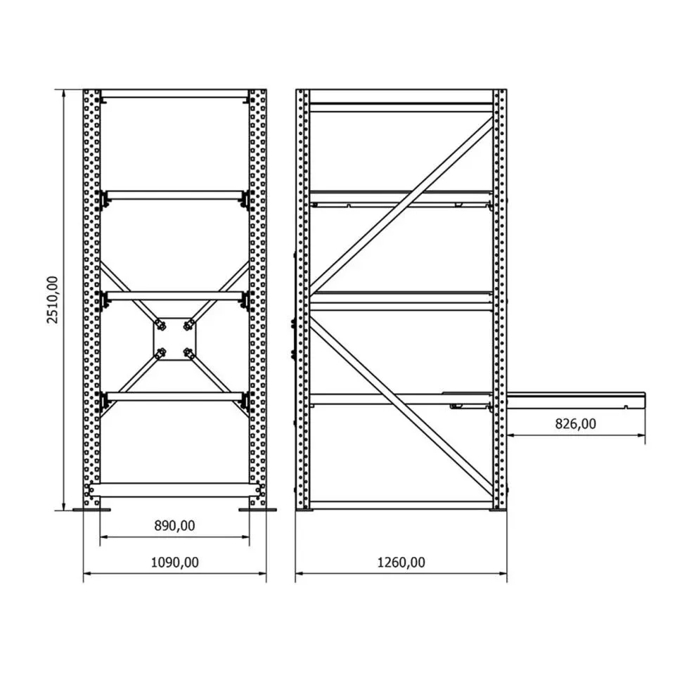
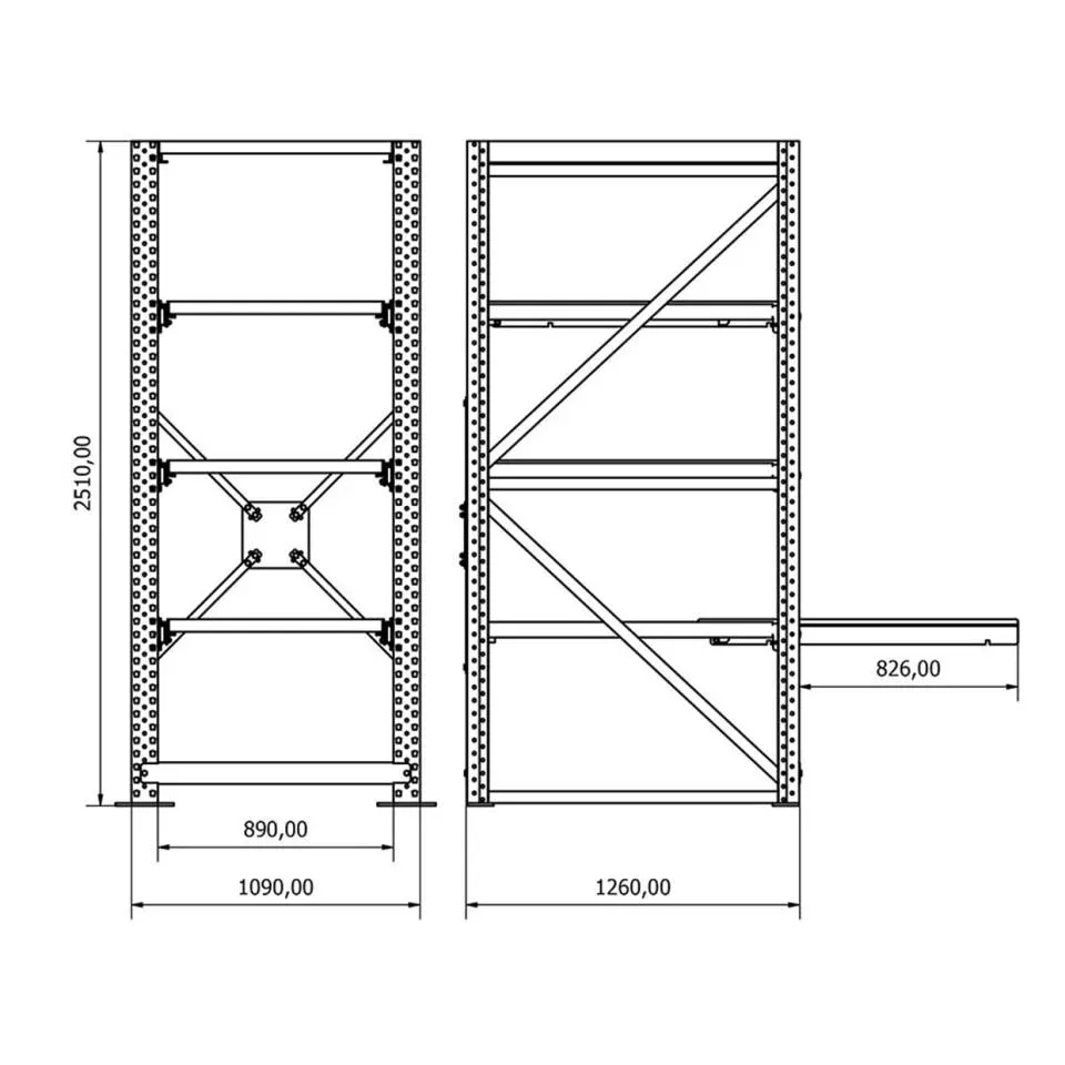
SE.2552.0822 Çekmeceli Kalıp Rafı, %65 açılım sunan çekmece yapısıyla ağır hizmet tipi depolama ihtiyaçlarını karşılamak üzere geliştirilmiş, yüksek performanslı bir çözümdür. Endüstriyel ortamlarda maksimum taşıma kapasitesi ve iş güvenliğini bir araya getiren bu sistem, her çekmecede 800 – 1000 kg, saha genelinde ise toplam 9.000 kg yük taşıma imkânı sağlar. %65 oranında açılabilir çekmeceler, kullanıcıya geniş erişim sunarken, entegre güvenli durdurma kilidi, çekmecenin açık konumda sabitlenmesini sağlayarak yükleme ve boşaltma sırasında güvenliği üst seviyeye taşır.
Sistem, 890 mm, 1090 mm ve 1290 mm genişlik, 860 mm, 1060 mm ve 1260 mm derinlik alternatifleriyle modüler olarak yapılandırılabilir, bu da farklı işletme sahalarına uyum sağlarken ilerideki kapasite artışlarında da genişletilebilirlik sunar. Standart 2500 mm yüksekliğe sahip bu raf sistemi, yüksek mukavemetli çelik karkastan üretilmiş olup, dış yüzeyi elektrostatik toz boya ile kaplanarak kimyasal ve mekanik aşınmalara karşı uzun ömürlü dayanıklılık kazandırılmıştır.
Kurulum sürecini kolaylaştırmak adına sistem, zemin kotuna göre ayarlanabilen seviye plakaları ve beton zeminlere hızlı ankraj özelliğiyle donatılmıştır. Ayrıca sistem sismik güvenlik standartlarını da karşılayarak titreşimli ya da riskli zemin koşullarında dahi kararlılığını korur. Çekmecelerin tam açık konumda otomatik kilitlenmesi, iş kazalarının önüne geçerken aynı zamanda yükleme ergonomisini de artırır.
SE.2552.0822; ağır kalıp ve takım depolaması, CNC üretim alanları, motor ve şanzıman muhafazası, havacılık-sanayi yedek parça yönetimi ve lojistik sevkiyat öncesi konsolidasyon gibi yüksek yük kapasitesi ve düzen gerektiren profesyonel ortamlarda üstün performans sağlar. Sistem, sadece fiziksel yükleri değil, aynı zamanda iş akışınızı da taşır. İş güvenliğini artırmak, alan kullanımını optimize etmek ve operasyonel verimliliği bir üst seviyeye çıkarmak isteyen işletmeler için ideal bir tercihtir.