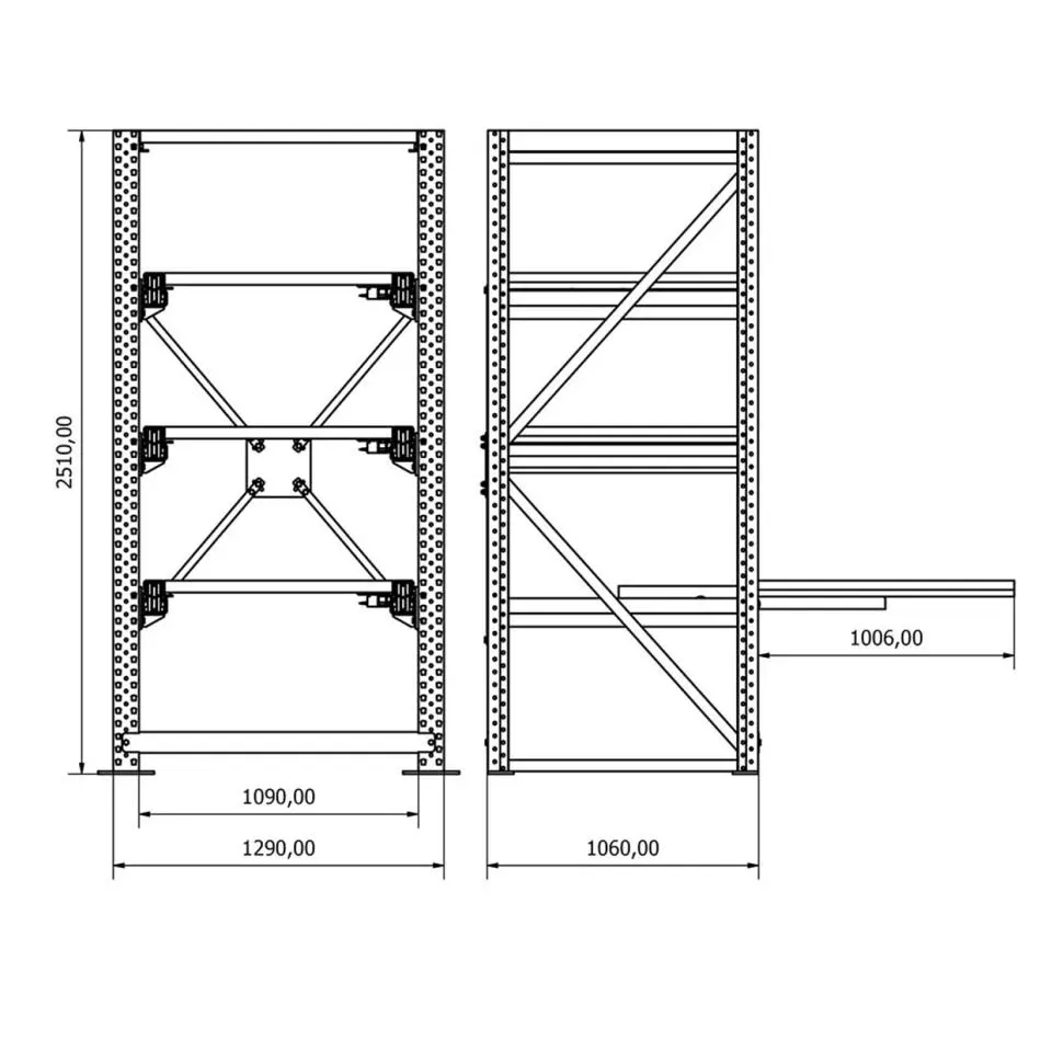
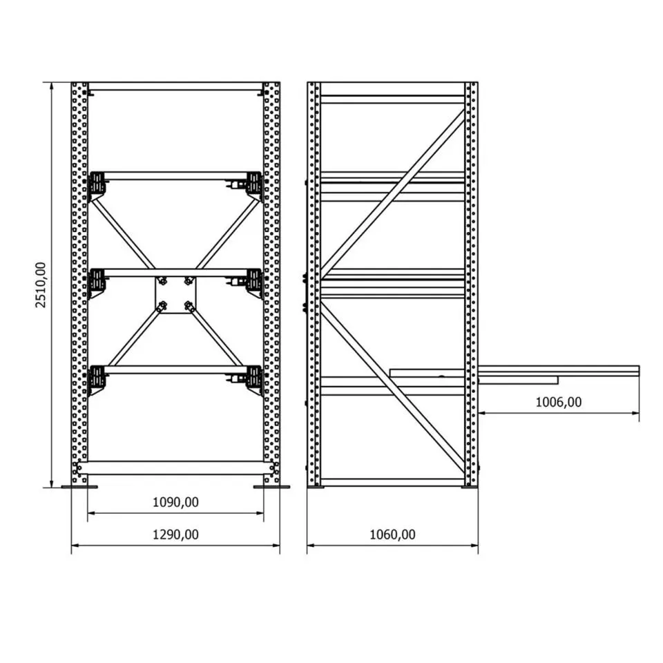
Çekmeceli Kalıp Rafı %100 SE.2552.1011

.png)

.png)
SE.2552.1011 Çekmeceli Kalıp Rafı, %100 açılabilir çekmece sistemine sahip, yüksek taşıma kapasitesi ve tam erişim ergonomisi sunan bir ağır-yük depolama çözümüdür. Her bir çekmece için 800 – 1000 kg, saha genelinde ise 9.000 kg taşıma kapasitesiyle, yoğun ekipman trafiği olan endüstriyel ortamlarda maksimum verimlilik sağlar. Tam açılım sağlayan çekmeceler, operatörün yüke doğrudan erişimini mümkün kılar; entegre güvenli durdurma kilidi, çalışma sırasında çekmecelerin istem dışı hareketini önleyerek yüksek seviyede iş güvenliği sunar.
Sistem; 890 mm, 1090 mm, 1290 mm genişlik ve 860 mm, 1060 mm, 1260 mm derinlik alternatifleriyle modüler bir tasarım sunar. 2500 mm raf yüksekliği ile standart endüstriyel alanlara tam uyum sağlar. Gövdesi, yüksek dayanımlı çelikten üretilmiş olup, yüzeyinde kullanılan elektrostatik toz boya, darbeye, aşınmaya ve kimyasallara karşı uzun ömürlü bir koruma tabakası oluşturur.
Kurulum süreci, zemin kotuna göre ayarlanabilir seviye plakaları ve beton zemine hızlı ankraj sistemi sayesinde pratik ve stabildir. Yapı, sismik güvenlik standartlarıyla uyumlu olarak geliştirilmiştir; bu da deprem ve titreşimli ortamlarda sistemin kararlılığını garanti eder. Ayrıca çekmecelerin tam açık konumda kendini otomatik kilitlemesi, yükleme ve boşaltma esnasında maksimum kontrol ve güvenlik sağlar.
SE.2552.1011, CNC kalıp atölyeleri, otomotiv yenileme hatları, motor & şanzıman depoları, havacılık ve savunma sanayi parça yönetimi, kargo hub’ları gibi operasyonel yoğunluğun yüksek olduğu alanlarda üstün bir çözüm sunar. Alan yönetimi, operasyonel hız, sistem güvenliği ve uzun vadeli dayanıklılığı bir arada sunan bu model, yalnızca bir depolama ünitesi değil; iş akışınızı yeniden yapılandıracak endüstriyel bir verimlilik altyapısıdır.