Modüler Çalışma Tezgahı 36.18.33 SE.36.17.31+

.png)

.png)
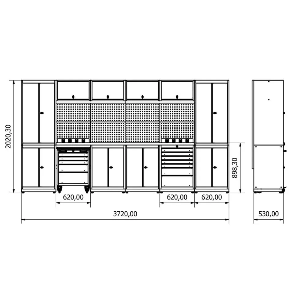
36.18.33 kodlu modüler çalışma tezgahı, endüstriyel ihtiyaçlara yönelik olarak yüksek dayanım, esnek yapılandırma ve uzun ömürlü kullanım özellikleriyle tasarlanmıştır. 36.18.33 H2020 x W3720 x D530 mm boyutlarındaki bu sistem, üretim alanları, bakım servisleri, teknik atölyeler ve Ar-Ge laboratuvarları için ideal çözümler sunar.
Malzeme ve Yapı Kalitesi:
Tezgah gövdesi, dayanıklılığıyla bilinen DKP ve HRP sac malzemeden imal edilmiştir. Tüm metal yüzeyler, elektrostatik toz boya ile kaplanmış olup RAL7016 (Antrasit Gri) ve RAL7011 (Koyu Gri) renk seçenekleriyle sunulmaktadır. 36.18.33 renkler isteğe bağlı olarak değiştirilebilir yapıdadır.
Paneller ve Düzenleme Alanları:
Toplamda 8 adet delikli pano içeriğiyle donatılmıştır:
-
6 adet H375 x W620 x D15 mm ölçülerinde büyük panel
-
2 adet H300 x W620 x D15 mm ölçülerinde küçük panel
Bu panolar sayesinde el aletleri, aparatlar ve aksesuarlar düzenli ve erişilebilir şekilde yerleştirilebilir. Modüler yapısı sayesinde kullanıcıya özel yapılandırmalar kolayca yapılabilir.
Çalışma Yüzeyi Seçenekleri:
Tezgah, 36.18.33 2 adet W1240 x D550 mm ölçülerinde 30 mm kalınlığında masif kayın panelden oluşan geniş bir çalışma alanı sunar. İsteğe bağlı olarak paslanmaz çelik tabla alternatifiyle hijyen ve kimyasal dayanım gerektiren ortamlara da uyum sağlar.
Elektrik Donanımı ve Aydınlatma:
-
Toplam 8 adet kapaklı, 220V topraklı priz (IP44 koruma sınıfı) ile elektrikli aletler için güvenli enerji dağıtımı sağlar.
-
2 adet LED armatür (900 serisi) ile çalışma alanı homojen ve yeterli şekilde aydınlatılır. LED sistem enerji verimliliği ve uzun ömürlü kullanım sunar.
Ağırlık ve Yapısal Dayanım:
Aksesuarlar hariç toplam ağırlık 372 kg olup, bu da ürünün ağır yüklere karşı stabil kalmasını sağlar. Yoğun sanayi kullanımı için tasarlanmış olan 36.18.33, hem mekanik sağlamlık hem de görsel estetik anlamında sınıfının üzerinde bir performans sunar.
36.18.33 kodlu modüler çalışma tezgahı, profesyonel kullanım için geliştirilmiş dayanıklı bir çözümdür. 36.18.33 modeli, geniş çalışma alanı ve sağlam yapısı ile öne çıkar. 36.18.33, endüstriyel kullanım için ideal olup uzun ömürlü performans sunar. 36.18.33 ile çalışma alanınızı daha verimli hale getirebilirsiniz. 36.18.33, düzen ve dayanıklılığı bir arada sunar.